廊坊宝光电气有限公司属北京华电国网电力设备有限公司下属公司
首页
关于我们
新闻动态
产品中心
工程案例
下载中心
营销网络
联系我们
首页
> 产品中心 > 环网柜、充气柜、电缆分支箱、开闭所
产品中心
product
低压成套开关柜
高压成套开关柜、直流屏
环网柜、充气柜、电缆分支箱、开闭所
箱式变电站
三箱类、动力柜、数控系统电气柜
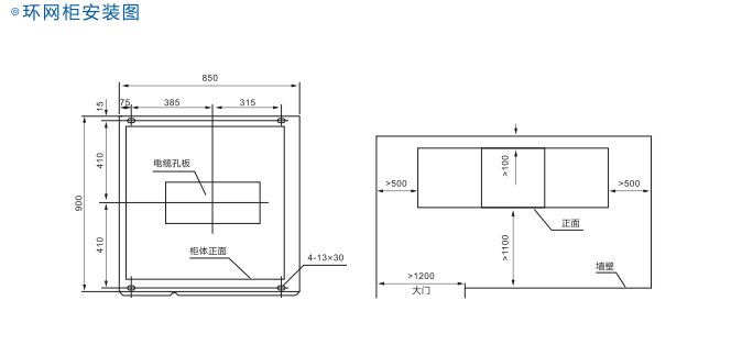
XGN15-12
户内交流高压六氟化硫环网柜开关设备
产品描述:
技术参数:
*详细资料见PDF文件