廊坊宝光电气有限公司属北京华电国网电力设备有限公司下属公司
product

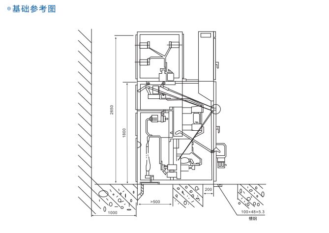
适用范围:
XGN2-12箱型固定式金属封闭开关设备是由西安高压电器研究所开发和研制的高压成套开关设备。设备所用主要一次元件均属重新设计,与目前主要使用的手车式开关柜和GG-1(A)F型开光柜相比具有较高的绝缘水平和防护等级,内部不采用任何形式的相间和相对地隔板及绝缘气体,二次回路不采用二次插头(即不管设备再何种状态下,保护和控制回路是始终贯通的);产品用于3-10kV单母线,单母线带旁路系统中作为接受和分配电能的高压成套设备。本产品符合“五防”要求。
产品各项指标符合GB3906《3-35kV交流金属封闭开关》、IEC298技术标准。
开关柜主要技术参数:





*详细资料见PDF文件