廊坊宝光电气有限公司属北京华电国网电力设备有限公司下属公司

首页 > 产品中心 > 高压成套开关柜、直流屏
HXGN□-12
金属铠装中置移开式开关设备
产品描述:

适用范围:

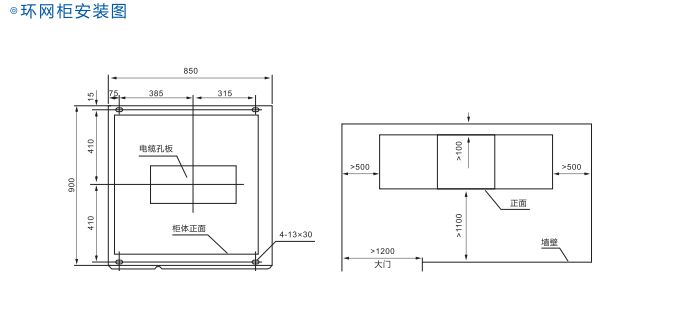
HXGN□-12ZF(R)箱型固定式金属封闭开关柜(简称环网柜)适用于交流50Hz,10kV的网络作为开断负荷和短路及关合短路电流用,本环网柜配手动、电动弹簧机构来操作负荷开关,接地开关和隔离开关配用手动操作机构。本环网柜成套性强、体积小、无火灾和爆炸危险,具有可靠“五防”功能。

技术参数:

*详细资料见PDF文件